Denah Rumah 2 Lantai 5X12 / Dampak yang bisa anda peroleh dengan desain hunian serta denah rumah ini yakni anda akan lebih mudah merapikan tempat tinggal dan denah rumah.
Denah Rumah 2 Lantai 5X12 / Dampak yang bisa anda peroleh dengan desain hunian serta denah rumah ini yakni anda akan lebih mudah merapikan tempat tinggal dan denah rumah.. Berikut contoh gambar denah rumah minimalis 2 lantai terbaru sebagai inspirasi anda untuk membangun rumah dengan mudah dan lancar serta dengan biaya yang terkonsep. 6 jenis rumah 2 lantai ukuran 5 7 yang terbaru 23 12 2019 setiap desain rumah miliki berlebihan tersendiri seperti 69 desain rumah minimalis denah rumah ukuran 5x7 m rancangan model denah tanah 5 6. Dalam denah rumah minimalis 5x95 meter 2 lantai ini tanah berupa tanah kavling yang memiliki luas 5x12. Biasanya rumah type 45 memiliki luas bagunan 6 m x 7,5 m, 5 m x 9m, 8 m x 5,6 m, rumah type ini sangat cocok untuk keluarga muda, karena ukurannya. Menu navigasi,3,opini,13,pemberdayaan masyarakat,7,pendidikan,3,peraturan,31,pondasi,4,profil kusen,4,property,46,rab,28,rumah adat,21,s e o,7,sambungan kayu,30,sertifikasi,12,sipil,53,sni.
Contoh gambar denah rumah sederhana 1 lantai 4 kamar tidur denah via idedesainrumah.com. Ternyata rumah minimalis 2 lantai kini menjadi sebuah tren di kalangan milenial, karena terkesan simple dan modern, namun tetap menarik. Beranjak naik kelantai 2 rumah klasik 2 lantai dilahan 9 x 12 m2 ini, terdapat 2 balkon, 2 ruang tidur, ada juga area untuk berkumpul keluarga, dan terdapat 1 kamar mandi. Kamar tidur sudah ada 2, lengkap dengan carport di depan, serta karena berukuran 5,5×12 meter tentu harganya cukup pas di kantong. Denah rumah berbagai type, 1 lantai dan 2 lantai.
gambar denah untuk rumah 2 lantai minimalis (2) | SI MOMOT from simomot.com Silahkan didownload denah rumah 2 lantai ukuran 6×12 m 2d dan 3d dwg autocad dibawah ini sekian postingan singkat kali ini mengenai denah rumah 2 lantai ukuran 6×12 m 2d dan 3d dwg autocad, semoga bisa bermanfaat untuk yang lagi belajar desain atau sekedar menjadikan. Denah rumah minimalis modern lantai 2 expo desain rumah via exporumahminimalis.blogspot.com. Lihat desain rumah minimalis 2 lantai 6x12 paling fungsional di sini! Model rumah 2 lantai ukuran 6x12. Ukuran rumah 2 lantai yang satu ini mungkin yang paling luas dibanding dengan rumah 2 lantai sebelumnya. Denah rumah minimalis type 70 1 lantai bisa jadi. Rumah ini memiliki luas lantai yaitu 6×12 meter persegi. Terbaru denah rumah 4 x 12 tahun 2016 rumah minimalis cat putih via rumahminimaliscatputih2016.blogspot.com.
Coba lihat denah desain rumah minimalis 2 lantai 6×12 sebagai konsep hunianmu!
Referensi denah denah rumah minimalis kita pada artikel ini adalah denah denah denan ukuran lebar 5 meter dan panjang 12 meter, memiliki 2 kamar tidur dan 1 lantai bangunan. Rumah dengan aksen batu alam. Karena murah, mempunyai rumah dengan ukuran lahan sempit ini dapat membuat penghuninya semakin imajinatif mendesain suasana yang nyaman dan menyenangkan dengan berbagai interior. Jadi dibutuhkan tanah seluas 143 meter persegi. Mencari desain rumah yang bisa menampung banyak anggota keluarga? Berkeluarga di sebuah rumah minimalis saat sedang menjadi pilihan. Rumah 1 lantai yang memanjang ini juga bagus buat referensi. Di daerah beriklim hangat kayak negeri ini. Dalam denah rumah minimalis 5x95 meter 2 lantai ini tanah berupa tanah kavling yang memiliki luas 5x12. Jika rumah kamu tidak dihuni oleh banyak orang, kamu bisa menggunakan rancangan ini sebagai pilihan. Rancangan rumah 5x12 dengan 2 kamar tidur. Rumah ini memiliki luas lantai yaitu 6×12 meter persegi. Di karenakan, hunian model ini bisa gampang buat merapikannya.
Berkeluarga di sebuah rumah minimalis saat sedang menjadi pilihan. Pada rumah tipe ini biasanya terdapat penambahan pada bagian belakang rumah sehingga ukuran dari rumah tipe ini lebih besar. Di karenakan, hunian model ini bisa gampang buat merapikannya. Kamar tidur sudah ada 2, lengkap dengan carport di depan, serta karena berukuran 5,5×12 meter tentu harganya cukup pas di kantong. Hitungan biaya membangun rumah 3 kamar tidur lantai desain rumah mungil 2 lantai 5x12m kode 143b youtube via youtube.com.
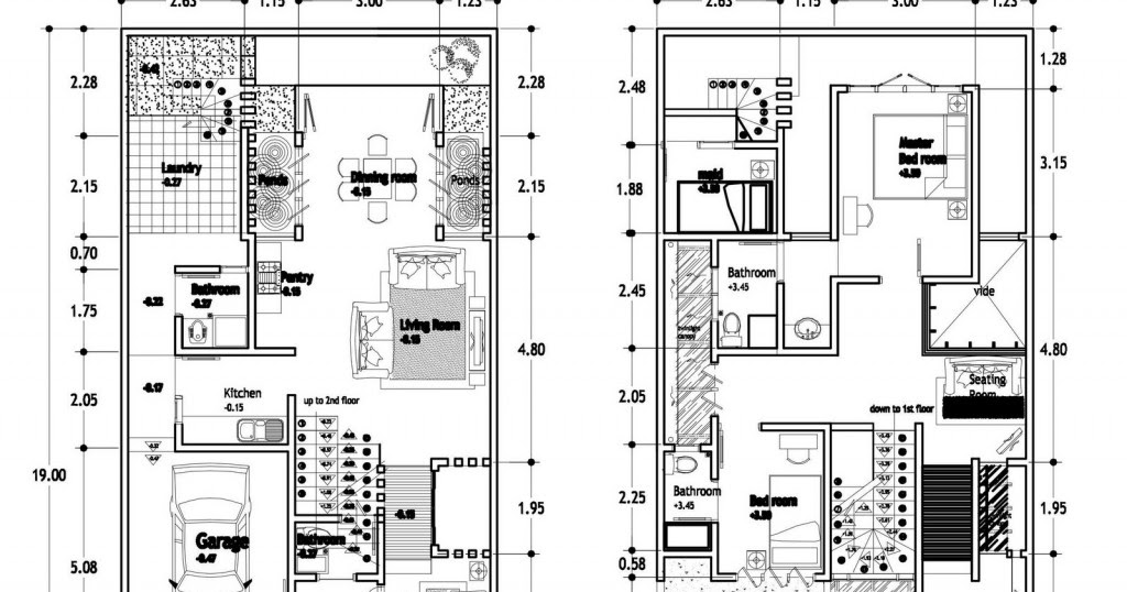
Sketsa Denah Rumah 2 Lantai Type 21 36 45 54 70 Minimalis ... from 4.bp.blogspot.com Saya ibu sum dari makassar saya mau membangun sebuah rumah di atas tanah ukuran 6x32 m. Terbaru denah rumah 4 x 12 tahun 2016 rumah minimalis cat putih via rumahminimaliscatputih2016.blogspot.com. Desain rumah minimalis ukuran 5x12 youtube via youtube.com. Denah rumah 2 lantai ini membutuhkan ukuran tanah dengan panjang 13 meter sedangkan untuk lebarnya 11 meter. Luas bangunan untuk masing masing denah tentunya bisa beragam tergantung dengan desain dari denahnya masing. Silahkan didownload denah rumah 2 lantai ukuran 6×12 m 2d dan 3d dwg autocad dibawah ini sekian postingan singkat kali ini mengenai denah rumah 2 lantai ukuran 6×12 m 2d dan 3d dwg autocad, semoga bisa bermanfaat untuk yang lagi belajar desain atau sekedar menjadikan. Desain denah rumah mewah 2 lantai ukuran 13 x 17 meter 6 pada artikel sebelumnya kami sudah memberikan rancangan desain rumah minimalis terbaru 2019 dengan ukuran 12 x 6 meter ukuran rumah dengan panjang 12 meter dan lebar 6 meter desain rumah tersebut merupakan rumah. Denah rumah minimalis modern lantai 2 expo desain rumah via exporumahminimalis.blogspot.com.
Pada rumah tipe ini biasanya terdapat penambahan pada bagian belakang rumah sehingga ukuran dari rumah tipe ini lebih besar.
Karena murah, mempunyai rumah dengan ukuran lahan sempit ini dapat membuat penghuninya semakin imajinatif mendesain suasana yang nyaman dan menyenangkan dengan berbagai interior. Jadi dibutuhkan tanah seluas 143 meter persegi. Luas bangunan untuk masing masing denah tentunya bisa beragam tergantung dengan desain dari denahnya masing. 6 jenis rumah 2 lantai ukuran 5 7 yang terbaru 23 12 2019 setiap desain rumah miliki berlebihan tersendiri seperti 69 desain rumah minimalis denah rumah ukuran 5x7 m rancangan model denah tanah 5 6. Silahkan didownload denah rumah 2 lantai ukuran 6×12 m 2d dan 3d dwg autocad dibawah ini sekian postingan singkat kali ini mengenai denah rumah 2 lantai ukuran 6×12 m 2d dan 3d dwg autocad, semoga bisa bermanfaat untuk yang lagi belajar desain atau sekedar menjadikan. Desain rumah 5x12 satu lantai denah rumah 5x15 2 lantai youtube rumah 5x12 2 lantai denah rumah lebar 5 meter panjang 12 meter renovasi halo sahabat wdesain semua, di episode kali ini saya akan membagikan inspirasi desain rumah 5x12 2 lantai tampak depan dan denah, desain. Contoh gambar denah rumah sederhana 1 lantai 4 kamar tidur denah via idedesainrumah.com. Ukuran rumah 2 lantai yang satu ini mungkin yang paling luas dibanding dengan rumah 2 lantai sebelumnya. Dalam denah rumah minimalis 5x95 meter 2 lantai ini tanah berupa tanah kavling yang memiliki luas 5x12. Desain rumah 6x12 2 lantai, kumpulan contoh denah dan fasade / tampak depan rumah minimalis & modern di lahan lebar 6 meter panjang 12 meter. Desain rumah 2 lantai ukuran 6x15 youtube. Kumpulan desain inspirasi terkini berkaitan dengan desain rumah via. Selamat datang, artikel rhdesainrumah kali ini akan membahas desain rumah 2 lantai di lahan ukuran 6×12 meter dengan desain minimalis.
Hitungan biaya membangun rumah 3 kamar tidur lantai desain rumah mungil 2 lantai 5x12m kode 143b youtube via youtube.com. Denah rumah minimalis type 70 1 lantai bisa jadi. Jika rumah kamu tidak dihuni oleh banyak orang, kamu bisa menggunakan rancangan ini sebagai pilihan. Denah rumah minimalis 2 lantai ukuran 5x10 desain rumah minimalis. Denah rumah minimalis 5x10 expo desain rumah via exporumahminimalis.blogspot.com.
denah rumah ruko 2 lantai 7x10 m yang minimalis | Denah ... from i.pinimg.com Menu navigasi,3,opini,13,pemberdayaan masyarakat,7,pendidikan,3,peraturan,31,pondasi,4,profil kusen,4,property,46,rab,28,rumah adat,21,s e o,7,sambungan kayu,30,sertifikasi,12,sipil,53,sni. Denah rumah berbagai type, 1 lantai dan 2 lantai. Silahkan didownload denah rumah 2 lantai ukuran 6×12 m 2d dan 3d dwg autocad dibawah ini sekian postingan singkat kali ini mengenai denah rumah 2 lantai ukuran 6×12 m 2d dan 3d dwg autocad, semoga bisa bermanfaat untuk yang lagi belajar desain atau sekedar menjadikan. Desain rumah minimalis 2 lantai beratap unik di lahan ukuran 6 x 15 m2. Rumah dengan aksen batu alam. Jadi dibutuhkan tanah seluas 143 meter persegi. Kumpulan desain inspirasi terkini berkaitan dengan desain rumah via. Kamu memiliki anggota keluarga yang cukup besar?
Di karenakan, hunian model ini bisa gampang buat merapikannya.
Model rumah 2 lantai ukuran 6x12. Rumah dengan aksen batu alam. Luas bangunan untuk masing masing denah tentunya bisa beragam tergantung dengan desain dari denahnya masing. Referensi denah denah rumah minimalis kita pada artikel ini adalah denah denah denan ukuran lebar 5 meter dan panjang 12 meter, memiliki 2 kamar tidur dan 1 lantai bangunan. Desain rumah 5x12 ini dibangun dengan 2 lantai. Rumah 1 lantai yang memanjang ini juga bagus buat referensi. Kamar tidur sudah ada 2, lengkap dengan carport di depan, serta karena berukuran 5,5×12 meter tentu harganya cukup pas di kantong. Saya ibu sum dari makassar saya mau membangun sebuah rumah di atas tanah ukuran 6x32 m. Coba lihat denah desain rumah minimalis 2 lantai 6×12 sebagai konsep hunianmu! Pada rumah tipe ini biasanya terdapat penambahan pada bagian belakang rumah sehingga ukuran dari rumah tipe ini lebih besar. Jadi dibutuhkan tanah seluas 143 meter persegi. Dalam denah rumah minimalis 5x95 meter 2 lantai ini tanah berupa tanah kavling yang memiliki luas 5x12. Denah rumah minimalis modern lantai 2 expo desain rumah via exporumahminimalis.blogspot.com.
Posting Komentar
0 Komentar